Тип Т10412
Технічні характеристики:
- Вантажопідйомність – 2000 кг
- Висота підйому – 6-36 м
- Швидкість пересування – 20 м/хв
- Швидкість підйому – 8м/хв
- Номінальна потужність двигуна підйому – 3 кВт
- Номінальна потужність двигуна пересування – 0,25 кВт (за висоти підйому понад 18 м встановлюється 2 двигуни)
- Ширина двотавра – 130-300 мм
Тельфери вантажопідйомністю 2 тн виробництва Болгарія відповідає всім стандартам якості ЄС Устаткування цього виробника використовується в більш ніж 50 країнах світу. Це вантажопідйомне обладнання високого класу, яке використовується на виробничих лініях, у складських приміщеннях, ремонтних майстернях тощо.
Цей тип тельфра простий у використанні та легкий в обслуговуванні. Досягнуто це за рахунок використання модульної конструкції, де кожен елемент виконує свою функцію.
Основні елементи тельфера:
- Електродвигун підйому з конусним ротором;
- Планетарний двоступеневий редуктор;
- Візок пересування;
- гакова підвіска;
- трос;
- барабан;
- двигун пересування;
- ящик управління;
Додаткові опції на замовлення:
- Радіокерування;
- Плавний підйом і опускання вантажу;
- Плавний пуск і зупинка пересування;
- Гальмо на пересування;
- Зменшена будівельна висота;
- Взрвивобезпечне виконання;
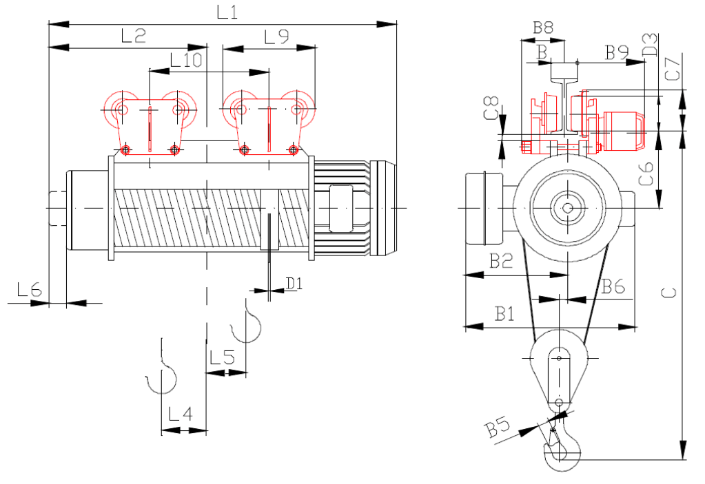
Габаритні розміри
| B1 | B2 | B5 | B6 | B8 | B9 | C | C6 | C7 | C8 | D1 | D4 | B | L1 | L2 | L4 | L5 | L6 | L9 | L10 |
| 575 | 380 | 45 | 22 | 118 | 265 | 1060 | 272 | 200 | 24 | 11 | 175 | 130-150 | 805 | 355 | 45 | 51 | 83 | 503 | – |



Ви маєте увійти, щоб оприлюднити коментар.